• 最近访问:
发表于 2025-10-15 16:10:26 东方财富Android版 发布于 陕西
$歌尔股份(SZ002241)$歌尔股份40元,50元指日可待!
发表于 2025-10-15 14:58:58 发布于 上海

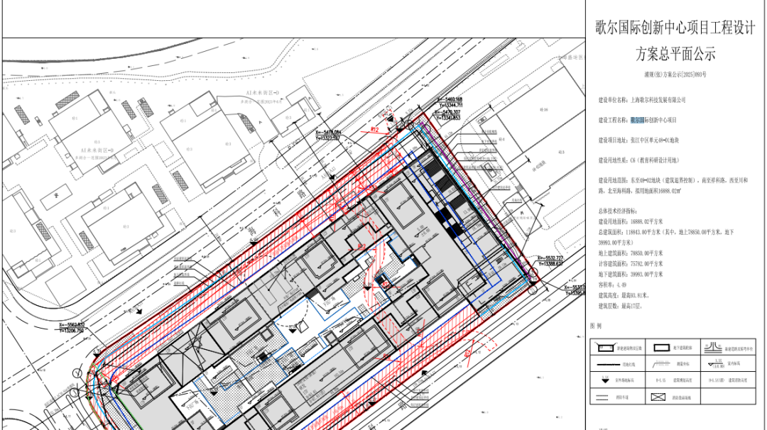
近日,上海市浦东新区人民政府官网发布了关于歌尔国际创新中心项目设计方案规划的公告。

公告明确,该项目由歌尔集团旗下上市公司歌尔股份的子公司——上海歌尔科技发展有限公司(下称“歌尔科技”)负责建设实施。

从主体层级看,歌尔集团为核心母体,直接持股歌尔股份15.72%,实际控制人姜滨任董事长、统筹集团整体战略。2024年10月12日,歌尔集团与浦东新区签订战略合作协议,提出打造集研发设计、品牌发布、人才汇集和内容制作为一体的国际创新中心,为项目奠定了战略基础。

歌尔股份则是集团旗下的上市核心载体,2001年成立,2008年5月在深交所上市,是全球布局的科技创新型企业,产品应用于智能手机、VR/AR设备等领域。截至发稿前,公司市值达1130亿!

2024年11月,歌尔股份于上海张江成立了子公司歌尔科技,注册资本1亿元,歌尔股份副总裁刘耀诚任法定代表人,核心业务涵盖人工智能、软件开发及工业设计。

时隔近一年,该战略蓝图迎来关键落地节点。据公示,项目选址张江科学城中区单元48-01地块,四至范围明确:东至48-02地块、西至川和路、南至祥科路、北至海科路。

规模方面,项目建设用地面积16888.02平方米,总建筑面积达11.88万平方米,其中地上7.89万平方米、地下4万平方米,容积率4.9,最高建筑高度93.81米(17层),规划涵盖研发大楼,未来有望成为歌尔在长三角的“技术枢纽”。

此次选择在上海落子,对处于转型阶段、正全力推进AR/VR产业布局的歌尔股份而言,具有关键的战略意义。

01

千亿“果链”巨头,如何炼成?

提及歌尔股份,绕不开其“果链巨头”的标签。其市值在2021年触及2000亿元高点,一度成为A股市场中炙手可热的消费电子明星企业。

创始人姜滨,1966年出生于山东威海,毕业于北京航空航天大学。1987年,他进入潍坊无线电八厂担任技术员,积累了扎实的行业功底。

1990年代工厂倒闭后,姜滨抓住时代机遇开启创业,最终于2001年正式成立歌尔股份的前身——潍坊怡力达电声有限公司。

彼时的歌尔仅有不足200平方米的车间和一条流水线,聚焦于驻极体麦克风领域。但姜滨坚持将利润投入技术设备升级,如引进德国五轴加工中心,以提升产品质量和生产效率。

2003年,消费电子行业迎来新风口,姜滨果断带队研发新兴的蓝牙耳机产品,并在2004年5月实现技术突破,成功推出首款蓝牙耳机。

为掌握生产蓝牙耳机的核心技术,歌尔股份在2004年专门成立了MEMS声学传感器研发部门。

技术投入迅速转化为市场优势。2006年,歌尔跻身中国蓝牙品牌榜首;2007年,公司营业收入飙升至6.45亿元,净利润达0.77亿元,较2005年分别激增5.26倍、4.27倍,成长为国内蓝牙耳机领域的领军企业。

2008年5月22日,歌尔股份登陆深交所主板,标志着公司进入快速发展阶段。彼时,公司将IPO募资的8371.59万元用于MEMS麦克风技术改造,占5.32亿元募资额的15.75%。

歌尔当时披露,已全面掌握MEMS芯片设计、低应力振膜生产、半导体封装等核心技术,甚至自研出微型麦克风自动测试机,为量产铺平了道路。

2010年成为歌尔发展的重要转折点。彼时苹果已进入中国市场两年,正加速将部分产能转移至国内,而歌尔凭借此前积累的技术实力与“大客户战略”布局,成功切入苹果供应链,为其供应蓝牙、微型麦克风等声学产品。

加入“果链”后,歌尔股份业绩猛增,2013年,公司营收首次突破百亿元;2017年,营收进一步攀升至255亿元以上;2018年,歌尔以100%良品率拿下苹果AirPods 30%的代工份额,跻身该产品全球第二大代工厂;2021年营收增至782.21亿元,净利润创历史达42.75亿元,至今未能突破。

业绩爆发直接推动市值飙升。2020年7月,歌尔股份市值首次突破千亿元关口;2021年12月,市值涨至逼近2000亿元高点。

02

歌尔股份加速转型

布局AR+VR、汽车电子赛道

然而,高光时刻背后,公司对苹果单一客户的依赖风险也逐渐凸显——苹果一度是歌尔股份的第一大客户,客户结构集中化问题在行业波动中愈发明显。

尤其是在2022年,歌尔股份遭遇砍单事件,公司收到苹果关于暂停生产部分型号AirPods的通知。

此次事件对歌尔股份的财务状况和市场表现造成了显著影响。据分析,歌尔股份预计2022年营收减少约33亿元,占其2021年营收的4.2%。此外,直接损失和资产减值损失预计在20亿至24亿元之间,导致其净利润大幅下降,预计较上年同期减少50%-60%。

事件发生后,歌尔股份股价大幅下跌,市值蒸发超过200亿元,股价较2021年底下跌超60%。

面对挑战,姜滨带领公司加速向多元化发展,逐步降低对单一客户与单一业务的依赖。

一方面,歌尔股份积极地从“代工厂”向“系统集成供应商”转型。

今年7-8月,公司先后收购米亚精密、昌宏实业两家企业。这两家公司均为苹果手机结构件核心制造商,2024年合计实现营收达90亿港元,收购完成后,歌尔股份不仅扩充了消费电子结构件产能,更完善了从组件到集成的产业链布局,提升综合服务能力。

另一方面,歌尔股份重点布局VR/AR、智能硬件等新兴领域,构建了以精密零组件、智能硬件、智能声学整机为核心的三大业务矩阵。

其中,精密零组件与智能硬件两大业务应用场景广泛,已深度切入智能手机、平板电脑、VR/AR设备、智能可穿戴产品及智能家居赛道;智能声学整机业务则聚焦音频终端,核心产品包括无线耳机、有线耳机及智能音箱等。

据有关媒体报道,目前歌尔股份已成为华为、三星、小米、Meta(元宇宙平台企业)及亚马逊等头部企业的核心供应商,客户结构不断优化。

值得注意的是,在押注AR/VR下一代智能硬件赛道的同时,歌尔股份亦在积极拓展第二增长曲线——汽车电子。

行业数据显示,汽车电子占整车成本正持续攀升,已从2020年的34%升至2025年的较高水平,预计2030年将达到50%;2025年全球汽车电子市场规模已突破6000亿美元,中国占比升至35%,成为最大单一市场。

针对这一赛道,歌尔股份已明确产品布局:目前已切入麦克风、AR-HUD、车载光学组件等领域,并加速研发应用于汽车电子的MEMS传感器,逐步构建汽车电子产品矩阵,以契合行业增长趋势。

03

落子上海

布局未来“增长密码”

如果说转型是歌尔股份的“生存策略”,那么落子上海,则是其布局未来的“增长密码”。

从行业来看,AR/VR(尤其是AI智能眼镜)被视为下一代智能硬件的核心形态,市场潜力巨大。2025年AI/AR眼镜产品有望重回增长趋势,预计2028年,全球AR设备出货量达到690万部。

正是基于这一市场洞察,歌尔股份已提前在上海卡位AI/AR赛道:

2025年2月,子公司歌尔光学科技(上海)(以下简称“上海歌尔光学”)发布全新AR全彩光波导显示模组,突破技术瓶颈。这家2012年成立的企业,其上海研发中心长期聚焦眼镜化AR的核心环节——AR光波导业务,已填补国内衍射光波导元件设计与母模制备的技术空白;

同年8月,歌尔股份公告拟以100%股权置换,重组舜宇光学旗下核心子公司上海奥来微纳光电(以下简称“上海奥来”)。成立于2019年的上海奥来,专注微纳米结构加工与衍射光学元件研发,其技术储备将与上海歌尔光学形成互补,进一步完善歌尔AR光学环节的产业闭环。

此次,歌尔股份在上海建设国际创新中心,不仅是自身战略升级的关键一步,更将进一步完善浦东AR/VR硬件产业生态。

近年来,浦东逐步形成了以硬科技为核心、多产业链协同的发展格局,在政策支持、空间规划、资金配套与人才服务等多维度保障下,一批高科技企业实现关键技术突破与产品商业化落地,推动我国在XR等领域逐步走向全球产业前沿。

以其落地的张江科学城为例,目前这里已汇聚一大批AR/VR、人工智能算法、智能传感、芯片设计等上下游企业,初步形成覆盖核心环节的空间计算产业生态,而歌尔股份的落子,将进一步串联起生态内的资源,加速产业协同。

从区域战略视角看,歌尔国际创新中心项目更是浦东“新一代电子信息集聚区”的重要拼图。依托张江1500万平方米“筑巢空间”与500亿元投资场景,歌尔不仅将导入Meta、小米等核心客户资源,更有望借助自身84.63%的海外营收占比优势,构建“张江研发-全球量产”的协同模式。

展望未来,当歌尔国际创新中心正式投用,当AR光学技术闭环持续完善,当汽车电子产品矩阵逐步落地,这家从“果链”走出的千亿巨头,或将在上海这片创新沃土上,开辟出更具想象空间的增长极。

郑重声明:用户在财富号/股吧/博客等社区发表的所有信息(包括但不限于文字、视频、音频、数据及图表)仅代表个人观点,与本网站立场无关,不对您构成任何投资建议,据此操作风险自担。请勿相信代客理财、免费荐股和炒股培训等宣传内容,远离非法证券活动。请勿添加发言用户的手机号码、公众号、微博、微信及QQ等信息,谨防上当受骗!
作者:您目前是匿名发表   登录 | 5秒注册 作者:,欢迎留言 退出发表新主题
温馨提示: 1.根据《证券法》规定,禁止编造、传播虚假信息或者误导性信息,扰乱证券市场;2.用户在本社区发表的所有资料、言论等仅代表个人观点,与本网站立场无关,不对您构成任何投资建议。用户应基于自己的独立判断,自行决定证券投资并承担相应风险。《东方财富社区管理规定》

扫一扫下载APP

扫一扫下载APP
信息网络传播视听节目许可证:0908328号 经营证券期货业务许可证编号:913101046312860336 违法和不良信息举报:021-34289898 举报邮箱:jubao@eastmoney.com
沪ICP证:沪B2-20070217 网站备案号:沪ICP备05006054号-11 沪公网安备 31010402000120号 版权所有:东方财富网 意见与建议:021-54509966/952500